A Vendre Faire offre à partir de €49,000 euros - Maison
SOUS OPTION Maison à rénover avec jardin – Strépy-Bracquegnies
Avis aux investisseurs ou jeunes couples à la recherche d’un premier achat !
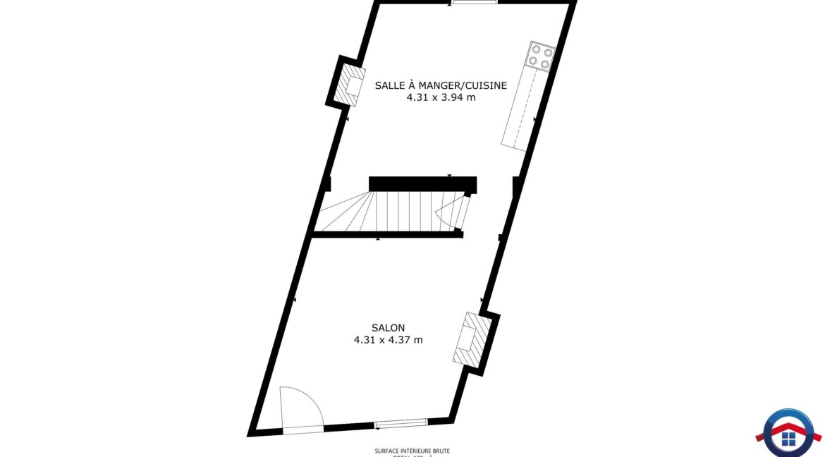
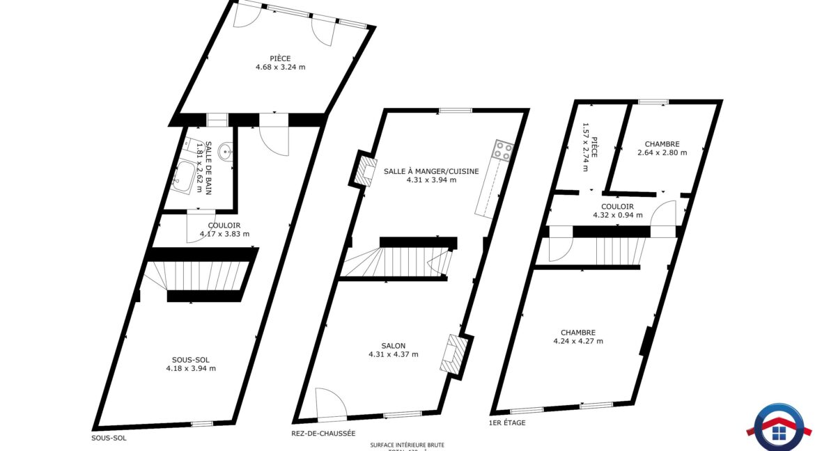
Cette maison à rénover entièrement dispose d’un jardin et d’une surface habitable de 138 m² (hors grenier), le tout sur une parcelle de 3a95ca.
Caractéristiques principales : Surface habitable : 138 m² (hors grenier) Surface de la parcelle : 395 m²
Jardin : présent
RC : 277 euros. Le raccordement à l’égout n’est pas possible à confirmer.
Composition :
Rez-de-chaussée : salon, salle à manger, cuisine
1er étage : hall de nuit, 2 chambres, espace dressing/bureau
Sous-sol (-1) : 2 caves, salle de bain

Un bien avec potentiel, idéal pour un projet de rénovation personnalisé.
Faire offre à partir de 49.000 €
Les informations reprises dans cette annonce sont fournies à titre indicatif et ne présentent aucun caractère contractuel. Les propriétaires se réservent le droit exclusif d’apprécier la hauteur et la qualité des offres reçues.
Informations complémentaires
- Catégorie certificat PEB: G
- N°certificat: 20250902028863
- Espec: 689 kwh/m².an
- Etot: 76784 kwh/an

















