A Vendre Faire offre à partir de €289,000 - Villa
VENDU !!! Charmante villa 3 chambres avec grand jardin et garage à Forchies-la-Marche (limite Piéton).
Située dans un quartier calme et recherché, cette villa érigée sur une généreuse parcelle de 18 ares 77 centiares séduira les amateurs d’espace et de confort grâce à ses beaux volumes et son potentiel d’aménagement. Le bien propose une surface habitable de +/- 182 m² et un RC de 1085 euros.
Composition :
Rez-de-chaussée :
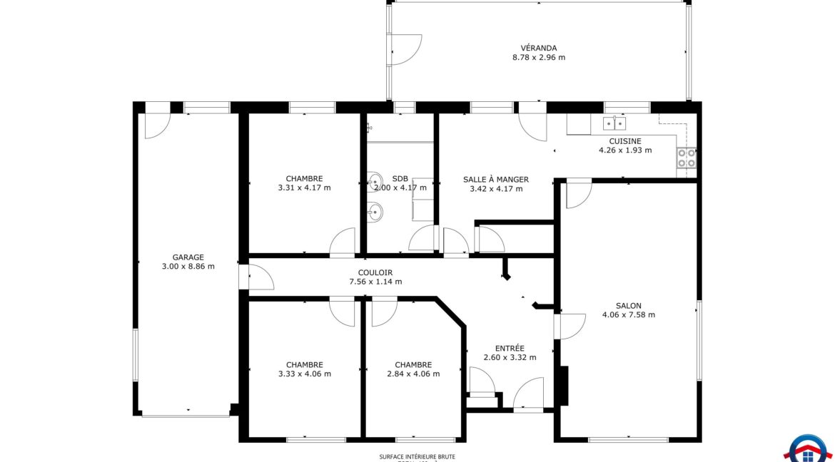
Hall d’entrée,
Séjour lumineux,
Cuisine avec salle à manger attenante,
Véranda agréable,
Salle de bain,
3 chambres confortables,
Garage avec accès direct à une partie du grenier (via escalier fixe).
Équipements et atouts supplémentaires :
Cave avec chaufferie,
Grand grenier aménageable (accès par escalier escamotable), idéal pour imaginer de nouvelles pièces,
Chauffage central au mazout (chaudière avec cuve enterrée de 3.000 L),
Production d’eau chaude couplée à la chaudière,
Présence d’une fosse septique (raccordement à l’égout à vérifier)
Certificat PEB : F

Le tout est implanté sur une vaste parcelle verdoyante, parfaite pour les amoureux d’espace, de nature et de tranquillité. Avec son potentiel d’agrandissement et son grand terrain, cette villa est une opportunité à ne pas manquer !
Faire offre à partir de 289.000 €
Les informations reprises dans cette annonce sont fournies à titre indicatif et ne présentent aucun caractère contractuel. Les propriétaires se réservent le droit exclusif d’apprécier la hauteur et la qualité des offres reçues.
Informations complémentaires
- Catégorie PEB: F
- N°certificat PEB: 20250811009849
- Espec: 492 kwh/m².an
- Etot: 92697 kwh/an



















