A Vendre Faire offre à partir de €89,000 - Maison
VENDU VENDU VENDU
Information importante :
En raison du grand nombre de demandes reçues, les visites sont temporairement suspendues.
Si vous êtes toujours intéressé(e) par ce bien, merci de m’envoyer vos coordonnées complètes (nom, prénom, téléphone, e-mail) afin d’être inscrit(e) sur la liste d’attente.
Vous serez recontacté(e) dans l’ordre de réception des messages si de nouveaux créneaux de visite se libèrent.
Merci pour votre compréhension.
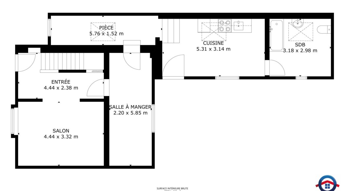
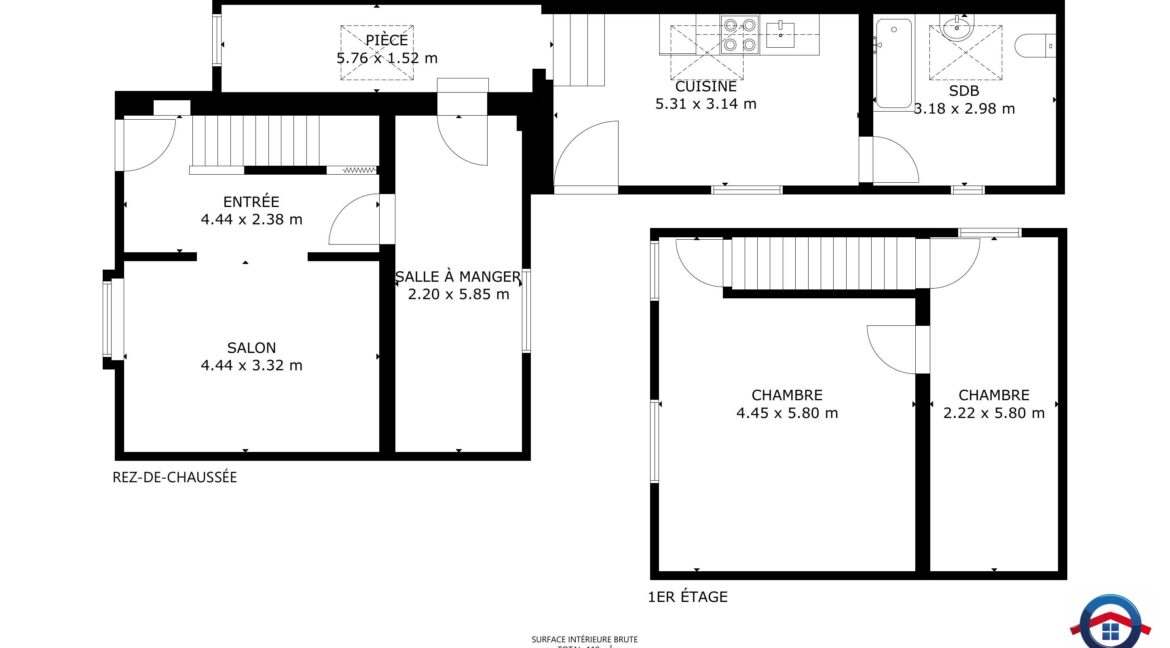
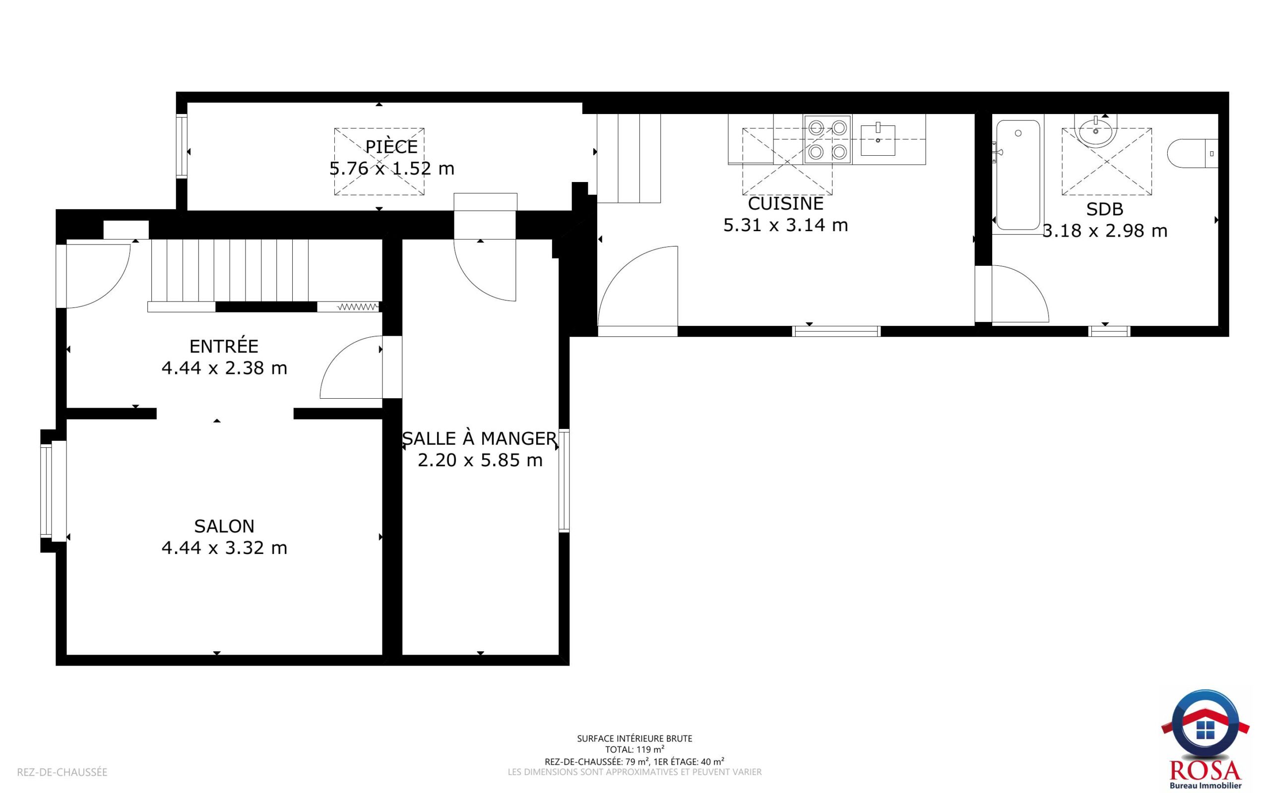
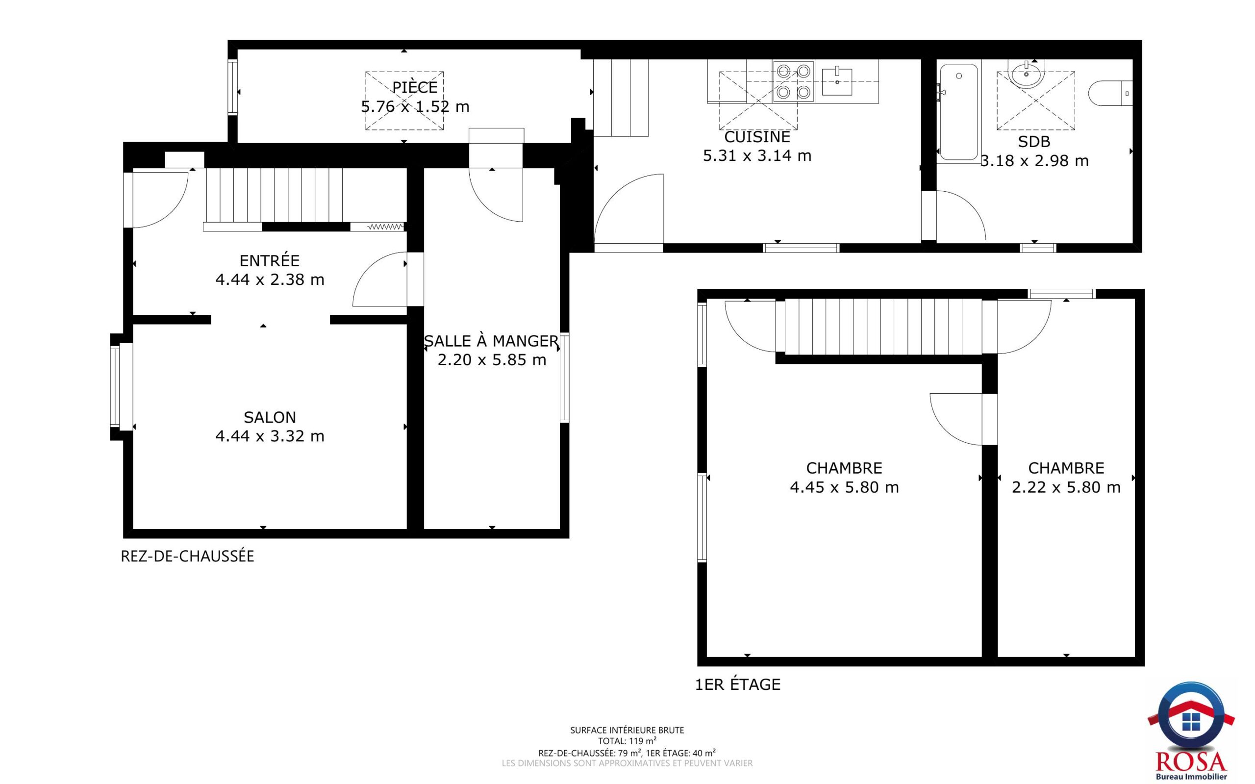
Située dans un quartier calme de Chapelle-Lez-Herlaimont, cette maison à rénover offre de belles possibilités d’aménagement et un excellent potentiel pour un premier achat ou un investissement.
Le bien développe une surface habitable d’environ 119 m² sur une parcelle de 2 ares 42 centiares.
Composition :
- Sous-sol : une pièce cave sur l’avant du bâtiment.
- Rez-de-chaussée : hall d’entrée, salon, salle à manger, espace de dégagement, cuisine et salle de bain.
- Étage : deux chambres et grenier aménageable, idéal pour créer une troisième chambre mansardée.
Le jardin, accessible depuis l’arrière de la maison, constitue un agréable espace extérieur à aménager selon vos envies.
Autres :
- Chauffage central au gaz.
- Eau chaude via boiler électrique.
- Revenu cadastral : 457 €.
- Certificat PEB G

Faire offre à partir de 89.000 €.
Les informations reprises dans cette annonce sont fournies à titre indicatif et n’ont aucun caractère contractuel. Les propriétaires se réservent le droit d’apprécier la hauteur et la qualité des offres reçues.
Informations complémentaires
- N°certificat peb: 20240612013895
- Catégorie PEB: G
- Espec: 565 kwh/m².an
- Etot: 73951 kWh/an

















