A Vendre Faire offre à partir de €194,000 - Commerce avec habitation
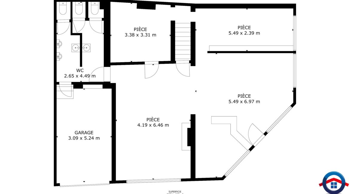
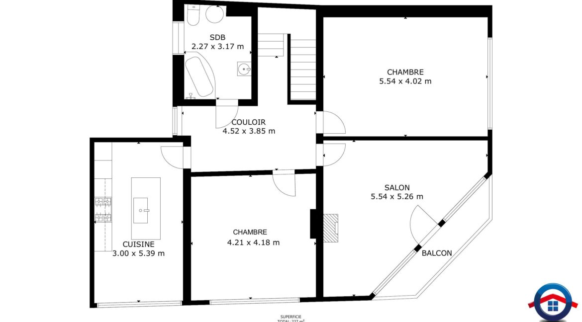
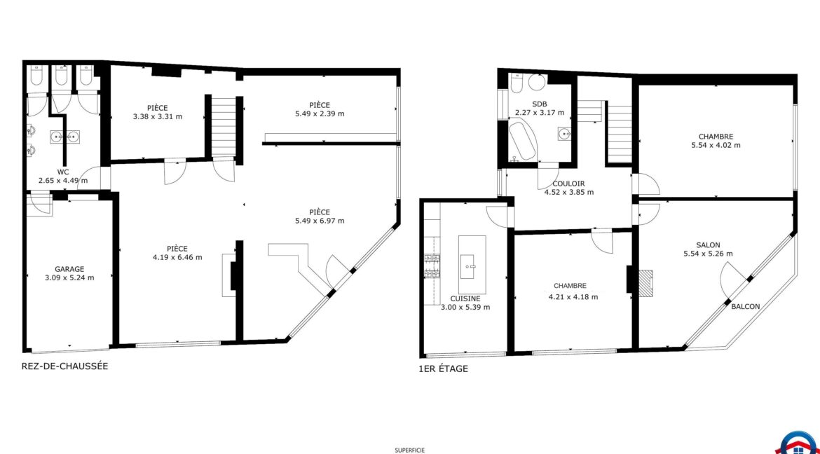
Maison de commerce et habitation avec garage situé dans le centre de Chapelle-Lez-Herlaimont. Surface de la parcelle 1a36ca. Surface commerce au rez : +/- 121m². Surface à l’étage habitation : +/-106m². Surface totale : 227 m². Au rez le bien est constitué de 2 grandes pièces ouvertes pouvant servir d’espace pour le commerce, un pièce servant de cuisine, une arrière cuisine, des sanitaires et un garage 1 voiture. Au 1er étage : hall desservant toutes les pièces, un salon, une cuisine, une salle de bain et 2 chambres. Grenier via une trappe ayant un beau volume à exploiter. Châssis double vitrage. Chauffage poêle au gaz pour l’habitation et production ECS via boiler électrique. Certificat PEB F. RC: 1291 euros.

Faire offre à partir de 194.000 euros. Les propriétaires se réservent le droit exclusif d’apprécier la hauteur et la qualité des offres. Les informations publiées sur ce site ont un caractère indicatif et non contractuel.
Informations complémentaires
- Catégorie PEB: F
- Espec: 463 kwh/m².an
- Etot: 56092 kwh/an
- N° Certificat: 20160407018547



















