Faire offre à partir de €239,000 euros
Grande maison 3 chambres avec garage, carport et jardin non attenant à La Louvière.
Située dans un quartier calme tout en restant proche du centre ville et de toutes commodités (hôpitaux, écoles, tous commerces, axes autoroutiers,etc.), cette spacieuse maison offre de beaux volumes, un extérieur agréable, plusieurs dépendances et une grande facilité de parking.
Édifiée sur une parcelle totale de 6 ares 65 centiares, elle dispose d’une surface habitable d’environ 131 m² et d’un revenu cadastral de 649 €.
La propriété comprend un garage 1 voiture, un carport 2 voitures ainsi qu’un jardin non attenant.
Un plan de géomètre d’origine est disponible pour consultation.
Composition:
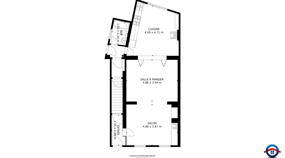
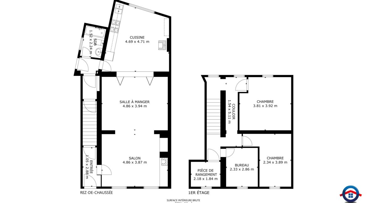
Rez-de-chaussée : hall d’entrée, grand living avec feu ouvert, cuisine équipée, salle de bains.
Étage : hall de nuit, trois chambres, pièce de rangement.
Grenier : aménageable, actuellement accessible par escalier escamotable (possibilité d’y installer un escalier fixe); beau volume à exploiter.
Le bien comprend également des caves carrelées, disposant d’une sortie vers l’extérieur.
Équipements et confort:
Chauffage central au gaz avec chaudière à condensation.
Production d’eau chaude via boiler électrique.
Châssis double vitrage bois et PVC ainsi que des volets électriques à l’arrière du bâtiment.
Cette maison familiale offre un beau potentiel grâce à ses volumes, ses annexes pratiques, son jardin arboré accessible via une cour commune.
Une opportunité à saisir à La Louvière, idéale pour un couple ou une famille à la recherche d’espace et de confort.
Faire offre à partir de 239.000 euros. Les informations reprises dans cette annonce sont fournies à titre indicatif et ne présentent aucun caractère contractuel. Les propriétaires se réservent le droit exclusif d’apprécier la hauteur et la qualité des offres reçues.
Informations complémentaires
- N° Certificat: 20250519034287
- Catégorie certificat PEB: F
- Espec: 481 kWh/m².an
- Etot: 70852 kWh/an
























